affitto semplice solo logo

AFFITTO SEMPLICE 

GESTIONE IMMOBILIARE®

Affitto Semplice gestisce il tuo immobile garantendo canone e serenità, occupandosi di tutto per te senza stress.

ISCRIVITI ALLA NOSTRA NEWSLETTER

AFFITTO SEMPLICE 

GESTIONE IMMOBILIARE®


facebook
instagram
whatsapp

LE NOSTRE PROPOSTE

CAMERE  PER STUDENTI - APPARTAMENTI IN AFFITTO A LUNGO TERMINE - AFFITTI TRANSITORI - LOCAZIONI COMMERCIALI

 

© 2025 AFFITTO SEMPLICE  @ All rights reserved.

 

affitto-semplice-gestione-immobiliare
AF5022
📍 Zona Coroncina – Siena

Descrizione
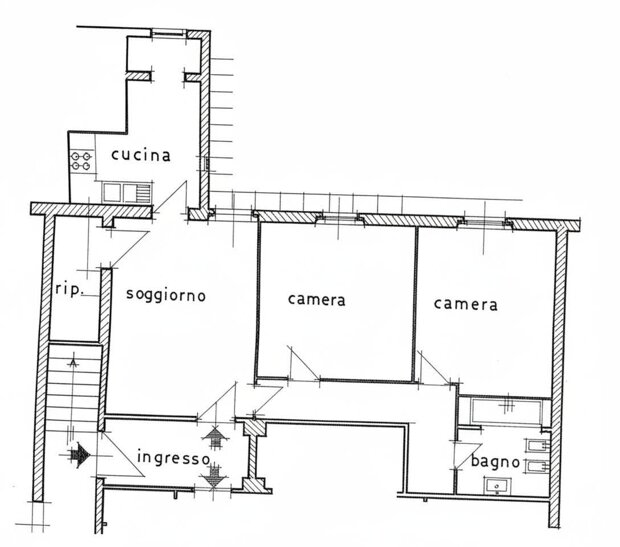
In contesto residenziale tranquillo e ben servito, proponiamo in locazione appartamento di 93 mq disposto su due livelli (piano terra e primo), situato in zona Coroncina, a pochi minuti dal centro storico di Siena e comodamente collegato dai mezzi pubblici.
L’immobile, senza spese condominiali, si presenta totalmente arredato ed è ideale per lavoratori o per esigenze abitative transitorie.
Composizione:
Ingresso su zona giorno
Cucina nuova e completamente attrezzata con tutti gli elettrodomestici
Due camere da letto
Un bagno
Ripostiglio
Due giardini ad uso esclusivo
Caratteristiche:
Superficie: 93 mq
Riscaldamento autonomo
Infissi nuovi
Lavatrice presente
Classe energetica in corso di validazione
Nessuna spesa condominiale
Condizioni contrattuali:
Contratto transitorio 6–12 mesi
Canone mensile: € 900
Deposito cauzionale: 1 mensilità
Provvigione agenzia: 1 mensilità
Animali non ammessi
Punti di forza:
✔ Due giardini esclusivi (raro in zona)
✔ Nessuna spesa condominiale
✔ Arredamento completo e cucina nuova
✔ Zona tranquilla ma ben collegata al centro storico

👥 Chi siamo
Siamo Affitto Semplice®, società di gestione immobiliare specializzata in affitti per studenti, lavoratori e famiglie a Siena e provincia.
Pensiamo a tutto noi: dalla gestione alla manutenzione, per garantirti un soggiorno sereno, comodo e senza pensieri.
Siamo a tua disposizione H24.
coroncina
Siena
Siena - SI
Italy


AF4853
Disponibile dal 14 Maggio
Chianti Classico – Appartamento ristrutturato in stile toscano, ideale per smart working

Nel cuore del Chianti Classico, all’interno di un suggestivo borgo storico immerso nel verde, proponiamo in locazione appartamento al piano terra di circa 97 mq (superficie interna, escluse aree esterne), inserito in un affascinante palazzo del XVIII secolo.

L’immobile è stato recentemente ristrutturato e conserva intatto il carattere tipico toscano: tutti gli ambienti sono impreziositi da travi a vista, mentre il soggiorno si distingue per un soffitto a cassettoni originale del 1700, elemento di grande fascino e unicità. Gli arredi combinano con equilibrio stile moderno e vintage, creando un’atmosfera rustica ma accogliente.

L’appartamento è composto da un ampio soggiorno, cucina abitabile completamente attrezzata, due camere da letto (una matrimoniale e una con letto a una piazza e mezza e letto singolo) e bagno finestrato con doccia. Nel soggiorno è presente anche un divano letto matrimoniale, che rende la distribuzione degli spazi particolarmente flessibile.

Il comfort abitativo è garantito da stufa a legna, caldaia a pellet per il riscaldamento e aria condizionata. L’immobile è dotato di lavatrice, asse da stiro e di tutti gli elementi necessari per una permanenza comoda e funzionale. All’esterno è disponibile uno spazio attrezzato con tavolino e sedie, ideale per momenti di relax.

La posizione è particolarmente indicata per lavoratori in smart working, professionisti o coppie che desiderano vivere in un contesto tranquillo, immerso nella natura, ma ben collegato: Siena è raggiungibile in circa 20 minuti, mentre l’immobile si trova in prossimità di percorsi naturalistici, cicloturistici e cammini storici.

Condizioni di locazione
Canone mensile: € 700

Spese forfettarie con conguaglio finale: € 350/mese ( tutto incluso, utenze, wifi, tari )
Contratto: uso transitorio
Soggiorno minimo: 1 mese
Deposito cauzionale: richiesto
Commissione di agenzia: prevista
Disponibilità: dal 15 giugno

Una soluzione di charme, ideale per smart working, turismo lento, per chi cerca tranquillità, carattere e qualità abitativa nel cuore della campagna toscana a pochi minuti dalla Città.
Una soluzione di charme, ideale per chi cerca tranquillità, carattere e qualità abitativa nel cuore della campagna toscana.

👥 Chi siamo
Siamo Affitto Semplice®, marchio registrato specializzato nella gestione di immobili in locazione a Siena e provincia, dedicato a studenti, lavoratori, professionisti e famiglie.
Ci occupiamo di tutto: gestione, manutenzione e assistenza. Il tuo soggiorno sarà sicuro, confortevole e supportato 24/7.
Palagio
Radda in Chianti
Siena - SI
Italy


AF4844
Disponibili da subito camere in appartamento per studentesse, situato in zona San Prospero, a pochi minuti dal centro storico di Siena, in contesto tranquillo e ben collegato.

L’appartamento, di ampia metratura (circa 172 mq), si trova al secondo piano ed è composto da 5 camere totali, zone comuni, ampio soggiorno con balcone e servizi condivisi.
Attualmente sono disponibili 3 camere, di cui una con bagno privato.
L’immobile è completamente arredato e dotato di connessione Wi-Fi.
Canoni mensili:

* €400 camera con bagno privato + spese

* €350 camere standard + spese

Affitto dedicato a studentesse.
Caparra e provvigione d’agenzia previste.
Soluzione ideale per chi cerca camere spaziose in un appartamento di grandi dimensioni, vicino al centro e in zona residenziale.

👥 Chi siamo
Siamo Affitto Semplice®, società di gestione immobiliare specializzata in affitti per studenti, lavoratori e famiglie a Siena e provincia.
Pensiamo a tutto noi: dalla gestione alla manutenzione, per garantirti un soggiorno sereno, comodo e senza pensieri.
Siamo a tua disposizione H24.
San prospero
Siena
Siena - SI
Italy


AFS017
Disponibili 2 camere – Appartamento in palazzina tranquilla, Viale Cavour – Siena

Disponibile da gennaio.

Al primo piano di una piccola palazzina tranquilla, proponiamo in locazione un appartamento di circa 80 mq, caratterizzato da dettagli tradizionali e da un’atmosfera accogliente. La soluzione è ideale per studenti o lavoratori alla ricerca di un’abitazione comoda, funzionale e ben posizionata.

L’appartamento è composto da ingresso, soggiorno con cucinotto separato e dispensa, due camere matrimoniali, un bagno e un comodo ripostiglio ad uso lavanderia. Gli ambienti risultano ben organizzati e confortevoli, con spazi adatti alla vita condivisa.

La zona di Viale Cavour – Antiporto è residenziale, tranquilla e ben servita, con facile accesso ai mezzi pubblici e collegamenti comodi verso il centro storico e le principali sedi universitarie.

Il canone di locazione è di 500 euro mensili a camera, comprensivo di tutte le spese.
👥 Chi siamo
Siamo Affitto Semplice®, società di gestione immobiliare specializzata in affitti per studenti, lavoratori e famiglie a Siena e provincia.
Pensiamo a tutto noi: dalla gestione alla manutenzione, per garantirti un soggiorno sereno, comodo e senza pensieri.
Siamo a tua disposizione H24.

Contratto transitorio, riservato a studenti o lavoratori.
viae cavour
Siena
Siena - SI
Italy


AFS016
Disponibilità da dicembre 2025!
Siena – Centro Storico, Contrada dell’Oca – Appartamento ristrutturato con giardino esclusivo e posto auto

Nel cuore del centro storico senese, all’interno dell’affascinante Contrada dell’Oca, proponiamo in locazione un appartamento unico nel suo genere: un terra-tetto di circa 100 mq, con ingresso indipendente, inserito in un contesto di sole tre unità abitative. Una soluzione esclusiva che combina il fascino dell’antico con comfort contemporanei, arricchita da un prezioso posto auto privato, elemento raro e molto ricercato in centro.

🛋️ Distribuzione degli spazi

L’abitazione si sviluppa su due livelli. Al piano terra troviamo l’ingresso che conduce alla zona giorno composta da soggiorno, cucina abitabile e primo bagno.
Al piano superiore si apre la zona notte con due camere, di cui una con accesso diretto al delizioso giardino esclusivo affacciato sulle storiche mura di Siena, oltre secondo bagno. Sullo stesso livello sono presenti anche uno studio e funzionali soppalchi che ampliano le possibilità di utilizzo degli spazi.

Gli ambienti, completamente arredati con gusto attraverso una combinazione di elementi contemporanei e pezzi di modernariato, offrono un’atmosfera raffinata e accogliente. Lo spazio esterno condominiale e il giardino privato rendono questa proposta un’occasione rara per chi desidera vivere il centro con il privilegio di un’area verde riservata.

🚗 Pertinenze e dotazioni

La proprietà dispone di posto auto dedicato, climatizzatore e riscaldamento autonomo.

💶 Condizioni di locazione

Canone mensile: € 1.000 oltre utenze
Spese condominiali: € 50/mese
Contratto: agevolato concordato
Disponibilità: da dicembre 2025

Una soluzione ideale per una coppia o per professionisti alla ricerca di un’abitazione di pregio, ricca di carattere e posizionata in uno dei luoghi più prestigiosi della città.

👥 Chi siamo
Siamo Affitto Semplice®, marchio registrato specializzato nella gestione di immobili in locazione a Siena e provincia, dedicato a studenti, lavoratori, professionisti e famiglie.
Ci occupiamo di tutto: gestione, manutenzione e assistenza. Il tuo soggiorno sarà sicuro, confortevole e supportato 24/7.
CONTRADA DELL'OCA
Siena
Siena - SI
Italy


AFS015
📅 Disponibilità immediata
Quercegrossa – Appartamento di pregio con resede esclusivo e vista panoramica

Nel cuore della zona residenziale di Quercegrossa, proponiamo in locazione un appartamento di 50 mq al primo piano di una palazzina di recente costruzione. Una soluzione ideale per chi desidera un ambiente moderno, luminoso e ben organizzato.

🛋️ Distribuzione degli spazi
L’ingresso indipendente conduce a un resede esclusivo di 40 mq con splendida vista panoramica. All’interno l’abitazione è composta da soggiorno living con accesso al balcone, cucina arredata, una camera da letto e un bagno finestrato.
Completano la proprietà un posto auto in garage condominiale e una cantina privata.

Una proposta perfetta per professionisti o per chi cerca un appartamento contemporaneo, funzionale e con spazi esterni privati.

💶 Condizioni di locazione
Canone mensile: 650 euro oltre utenze
Contratto di lungo periodo
Disponibilità immediata

👥 Chi siamo
Siamo Affitto Semplice®, marchio registrato specializzato nella gestione di immobili in locazione a Siena e provincia. Seguiamo ogni aspetto della locazione: gestione completa, assistenza continua e supporto costante per un soggiorno senza pensieri.
Quercegrossa
Castelnuovo Berardenga
Siena - SI
Italy


1 2 3 4 5 6

Non hai trovato quello che stavi cercando?

Sei un proprietario che vuole affittare?

 

CONTATTACI SUBITO!

Inserisci i tuoi dati e i dettagli della tua ricerca

vasta-selezione-case-camere-in-affitto-siena-provincia
affitto-semplice-siena-gestione-property-manager-affitti